Kraków, Prądnik Biały, Pękowicka

Mieszkanie na sprzedaż

Opis nieruchomości

Z ogromną przyjemnością przedstawiamy Państwu ofertę mieszkania na sprzedaż w malowniczym rejonie Doliny Prądnika, na północy Krakowa, blisko granicy z gminą Zielonki. Nowoczesne osiedle otoczone jest rozległymi terenami zielonymi, co umożliwia codzienny kontakt z naturą i zapewnia wytchnienie od intensywnego miejskiego życia w centrum miasta.

Osiedle zostało zaprojektowane z myślą o rodzinach, parach oraz singlach, oferując szeroki wybór mieszkań o powierzchni od 26 do 73 m², w układach 1-, 2-, 3- i 4-pokojowych. Dbałość o komfort mieszkańców przejawia się w wysokiej jakości przestrzeni wspólnych, które sprzyjają nawiązywaniu sąsiedzkich relacji: skwer z ławeczkami, plac zabaw...

Budynki nowej inwestycji  mające 3 i 4 kondygnacje, wyróżniają się kameralną architekturą, harmonizującą z okolicą. Przestronność obiektów gwarantuje mieszkańcom poczucie prywatności.

Zalety:

  • Home Management System to zaawansowana technologia inteligentnego domu, która umożliwia m.in. zarządzanie ogrzewaniem, oświetleniem i zaworami wody.
  • Pakiet antysmogowy w postaci filtrów montowanych w nawiewnikach okiennych dba o czystość powietrza we wnętrzach mieszkań.
  • Wysoki standard wykończenia części wspólnych obejmuje trwałe płytki gresowe, dekoracyjne panele imitujące drewno oraz energooszczędne oświetlenie LED.
  • Mieszkania na parterze posiadają tarasy z ogrodami o powierzchni do 123 m², natomiast mieszkania na wyższych kondygnacjach oferują przestronne balkony.
  • Termoizolacyjne łączniki balkonowe zapobiegają utracie ciepła, co przekłada się na oszczędności energetyczne.
  • Portfenetrowe okna zapewniają doskonałe doświetlenie wnętrz.
  • Na terenie osiedla zostanie zainstalowana stacja ładowania pojazdów elektrycznych, z myślą o mieszkańcach korzystających z ekologicznych środków transportu.
  • Zielone dachy budynków będą nie tylko estetyczne, ale również poprawią jakość powietrza i obniżą temperaturę otoczenia.

Prądnik biały to doskonale skomunikowana okolica, idealne miejsce dla osób szukających spokoju i bliskości natury, z jednoczesnym dostępem do nowoczesnych rozwiązań technologicznych.

Serdecznie zapraszam do kontaktu
Patrycja Rubinkiewicz
505 236 943
patrycja@sadurscy.pl

Nota prawna

Opis oferty zawarty na stronie internetowej sporządzany jest na podstawie oględzin nieruchomości oraz informacji uzyskanych od właściciela, może podlegać aktualizacji.

Szczegóły oferty

Symbol oferty BS2-MS-303951
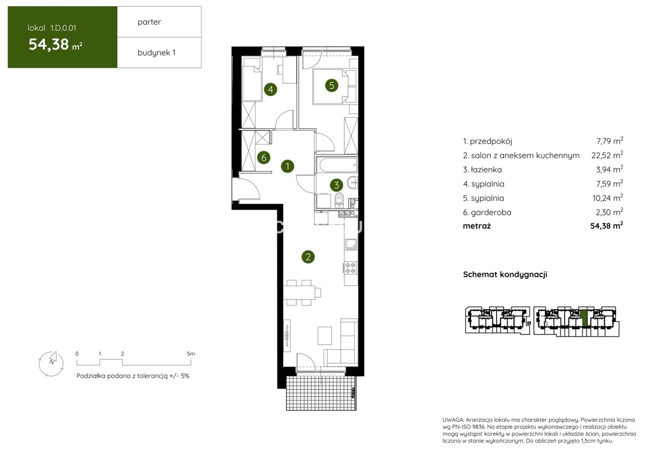
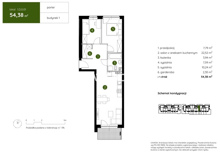
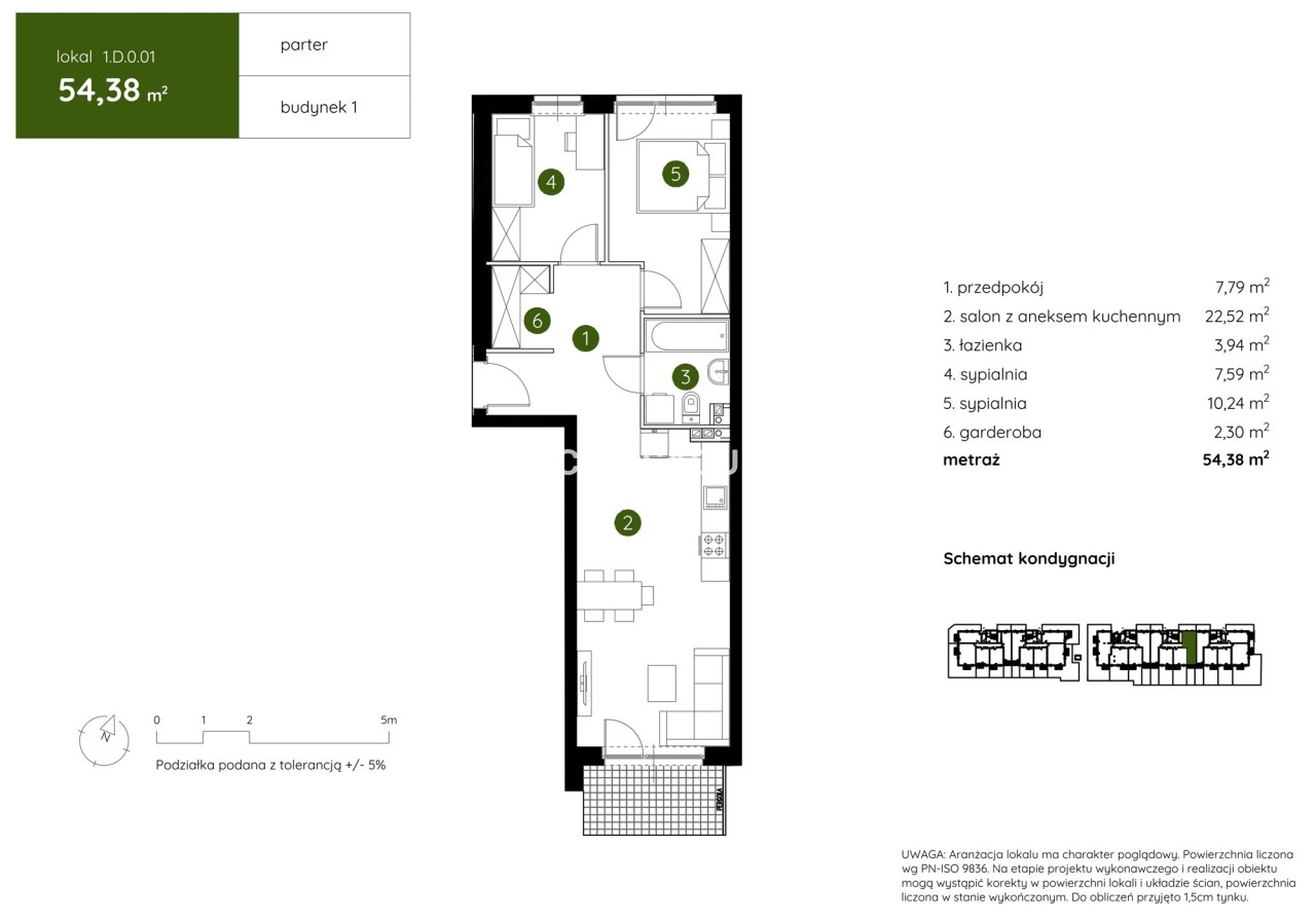
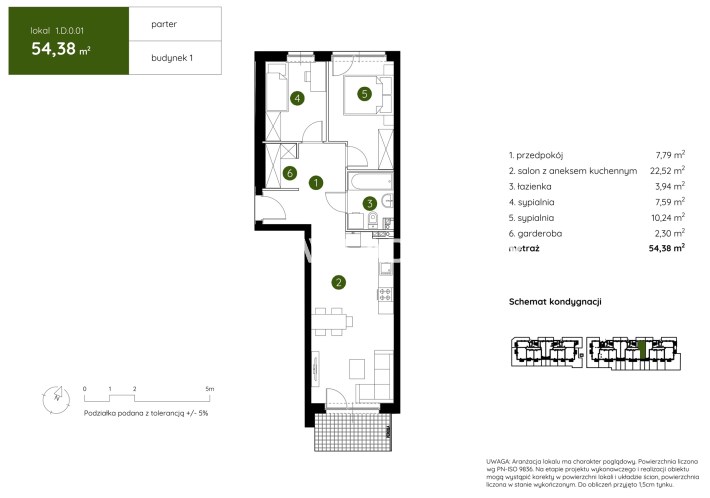
Powierzchnia 54,38 m²
Liczba pokoi 3
Piętro parter
Rodzaj budynku blok
Technologia budowlana pustak
Standard
Liczba pięter w budynku 3
Garaż garaż pod budynkiem
Stan lokalu deweloperski
Stan prawny Odrębna własność lokalu
Okna PCV
Instalacje KOMPUTEROWA, TELEFONICZNA
Balkon jest
Rok budowy 2024
Parking strzeżony (odległość w metrach) 300 m
Plac zabaw tak
Widok na osiedle
Gaz brak
Woda ciepła - miejska
Dojazd asfalt
Otoczenie działki zabudowane
Ogrzewanie C.O. miejskie
Odległość do komunikacji publicznej [m] 300 m
Odl. do sklepu [m] 400 m
Odl. do szkoły [m] 1 000 m
Odl. do przedszkola [m] 500 m
Winda tak
Drzwi antywłamaniowe tak

Pomieszczenia

Podłogi pokoi wylewka
Typ kuchni aneks kuchenny połączony z jadalnią i salonem
Rodzaj kuchni aneks kuchenny - połączony z jadalnią
Podłoga kuchni wylewka
Typ łazienki razem z wc
Glazura łazienki bez glazury
Podłoga łazienki wylewka
Glazura WC bez glazury
Podłoga WC wylewka
Liczba przedpokoi 1
Podłoga przedpokoi wylewka

Lokalizacja

Kalkulator kredytowy

PLN
%
Wysokość raty

Kalkulator kosztów

PLN
PLN
PLN
PLN
PLN
PLN
%
PLN
Podatek od czynności cywilno-prawnych
Taksa notarialna (opłata notarialna)
VAT od taksy notarialnej (opłaty notarialnej)
Wniosek do WKW
VAT od wniosku do WKW
Prowizja agencji nieruchomości
VAT od prowizji agencji nieruchomości
Wypisy aktu notarialnego - około
RAZEM (cena + opłaty)

Podobne oferty

Wirtualny spacer
video
mieszkanie na sprzedaż - Kraków, Krowodrza, Krowodrza Górka, Krowoderskich Zuchów

mieszkanie na sprzedaż

Kraków, Krowodrza, Krowodrza Górka, Krowoderskich…
2 pokoje 44,00 m2 20 886,36 zł/m2
bez prowizji
mieszkanie na sprzedaż - Kraków, Prądnik Biały, 29 listopada - okolice

mieszkanie na sprzedaż

Kraków, Prądnik Biały, 29 listopada - okolice
3 pokoje 67,43 m2 13 223,16 zł/m2
bez prowizji
mieszkanie na sprzedaż - Kraków, Prądnik Biały, 29 listopada - okolice

mieszkanie na sprzedaż

Kraków, Prądnik Biały, 29 listopada - okolice
2 pokoje 60,68 m2 13 477,16 zł/m2
bez prowizji
mieszkanie na sprzedaż - Kraków, Prądnik Biały, 29 listopada - okolice

mieszkanie na sprzedaż

Kraków, Prądnik Biały, 29 listopada - okolice
2 pokoje 50,20 m2 14 182,79 zł/m2

Napisz do nas

Proszę wypełnić to pole
Proszę wypełnić to pole
Proszę wypełnić to pole
Proszę wypełnić to pole
Trwa wysyłanie...

Ta strona wykorzystuje pliki cookies w celach statystycznych oraz w celu dostosowania naszych serwisów do indywidualnych potrzeb klientów. Zmiany ustawień dotyczących plików cookie można dokonać w dowolnej chwili modyfikując ustawienia przeglądarki. Korzystanie z tej strony bez zmian ustawień dotyczących cookies oznacza, że będą one zapisane w pamięci urządzenia.

rozumiem