Myślenice, Zawada

Mieszkanie na sprzedaż

Opis nieruchomości

NOWA INWESTYCJA DEWELOPERSKA – GOTOWA DO ZAMIESZKANIA!

ATRAKCYJNE CENY – FUNKCJONALNE MIESZKANIA W SPOKOJNEJ OKOLICY



Oferujemy:

Funkcjonalne układy mieszkań
od 25 m² do 57 m² – idealne dla singli, par i rodzin.

Widok na góry
– codzienny kontakt z naturą.

Ogrzewanie podłogowe
, które zwiększa komfort życia.

Pompy ciepła
i wentylacja z rekuperacją, gwarantujące oszczędność i ekologiczne rozwiązania.

Panele fotowoltaiczne
, wspomagające niższe koszty utrzymania.

Niskie opłaty eksploatacyjne
dzięki nowoczesnym technologiom budowlanym.

Miejsca parkingowe zewnętrzne
, dostępne dla mieszkańców.

Część mieszkań wykończonych „pod klucz”
, gotowych do zamieszkania od zaraz.

Prywatny bus osiedlowy
– darmowy transport dla mieszkańców.

Możliwość wykupienia miejsca postojowego: 25 000zł!!


Doskonała lokalizacja:


Osiedle znajduje się na wzgórzu, w zacisznej okolicy, z dala od zgiełku i ruchliwych ulic.

W sąsiedztwie malownicze trasy rowerowe i spacerowe – idealne dla rodzin, właścicieli psów i osób dbających o zdrowy tryb życia.  
  • Odległości:
    • Kraków – 18 km
    • Myślenice – 5 km
    • Jezioro Dobczyckie – 8 km
    • Sport Arena Myślenice – 10 km
    • Lotnisko Balice – 36 km
    • Zakopane – 84 km
Atrakcje osiedla:

Prywatny kort tenisowy.

Park i jeziorko na terenie inwestycji.

Ścieżki biegowe i spacerowe.

Zadaszona wiata grillowa – idealna na spotkania z rodziną i przyjaciółmi.

Inwestycja przyjazna środowisku:
Dzięki zastosowaniu nowoczesnych i ekologicznych rozwiązań budowlanych mieszkańcy osiedla zaoszczędzą na rachunkach za ogrzewanie, ciepłą wodę i oświetlenie.

Zamieszkaj w miejscu, które łączy komfort, nowoczesność i bliskość natury!


W celu uzyskania więcej informacji zapraszam do kontaktu:
Barbara Nazarewicz
basia@sadurscy.pl
515 634 552



 

Nota prawna

Opis oferty zawarty na stronie internetowej sporządzany jest na podstawie oględzin nieruchomości oraz informacji uzyskanych od właściciela, może podlegać aktualizacji.

Szczegóły oferty

Symbol oferty BS2-MS-305791
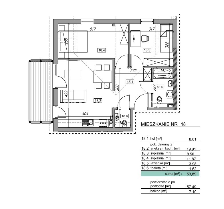
Powierzchnia 53,89 m²
Powierzchnia użytkowa 53,89 m²
Powierzchnia balkonów/tarasów 7,10 m²
Liczba pokoi 3
Piętro 2
Rodzaj budynku blok
Technologia budowlana kon. szkieletowa
Standard
Opłaty w czynszu administracja, Części wspólne, ochrona, ogrzewanie, sprzątanie, Winda, woda, woda ciepła, wywóz śmieci
Opłaty wg liczników CO
Liczba pięter w budynku 3
Garaż miejsce postojowe przed budynkiem
Stan lokalu deweloperski
Stan prawny Własność
Okna PCV 3 komorowe
Instalacje nowe
Balkon jest
Rok budowy 2024
Plac zabaw tak
Widok las
Gaz brak
Woda tak - miejska
Dojazd ASFALTOWA
Otoczenie jezioro i las
Ogrzewanie pompa ciepła
Winda tak
Usytuowanie dwustronne
Drzwi antywłamaniowe tak
Przystosowania dla niepełnosprawnych tak
Klucze tak

Lokalizacja

Kalkulator kredytowy

PLN
%
Wysokość raty

Kalkulator kosztów

PLN
PLN
PLN
PLN
PLN
PLN
%
PLN
Podatek od czynności cywilno-prawnych
Taksa notarialna (opłata notarialna)
VAT od taksy notarialnej (opłaty notarialnej)
Wniosek do WKW
VAT od wniosku do WKW
Prowizja agencji nieruchomości
VAT od prowizji agencji nieruchomości
Wypisy aktu notarialnego - około
RAZEM (cena + opłaty)

Podobne oferty

bez prowizji
mieszkanie na sprzedaż - Myślenice, Zawada

mieszkanie na sprzedaż

Myślenice, Zawada
2 pokoje 44,15 m2 11 650,00 zł/m2
bez prowizji
mieszkanie na sprzedaż - Myślenice, Zawada

mieszkanie na sprzedaż

Myślenice, Zawada
3 pokoje 45,61 m2 10 978,31 zł/m2
bez prowizji
mieszkanie na sprzedaż - Myślenice, Zawada

mieszkanie na sprzedaż

Myślenice, Zawada
3 pokoje 52,00 m2 11 550,00 zł/m2
bez prowizji
mieszkanie na sprzedaż - Myślenice, Zawada

mieszkanie na sprzedaż

Myślenice, Zawada
2 pokoje 44,18 m2 11 267,76 zł/m2

Napisz do nas

Proszę wypełnić to pole
Proszę wypełnić to pole
Proszę wypełnić to pole
Proszę wypełnić to pole
Trwa wysyłanie...

Ta strona wykorzystuje pliki cookies w celach statystycznych oraz w celu dostosowania naszych serwisów do indywidualnych potrzeb klientów. Zmiany ustawień dotyczących plików cookie można dokonać w dowolnej chwili modyfikując ustawienia przeglądarki. Korzystanie z tej strony bez zmian ustawień dotyczących cookies oznacza, że będą one zapisane w pamięci urządzenia.

rozumiem