Brzozówka, Lipowa

House for sale

Property description

Property description

Offer no. BS2-DS-305960
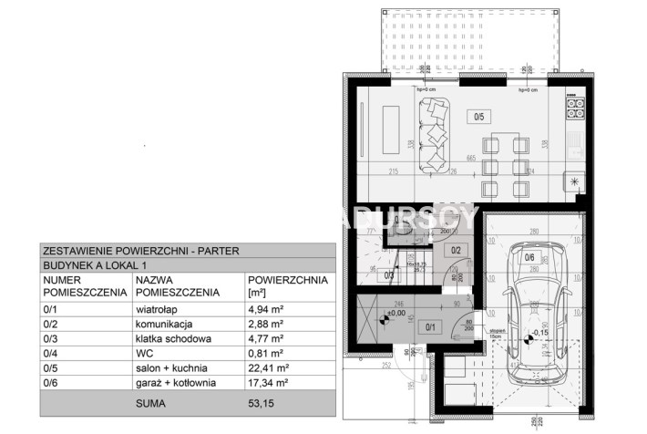
Size 103,00 m²
Parcel area 170 m²
No. of rooms 4
House type segment
Building technology aerated concrete
Standard
Storey 1
Parking space in the building
Legal status freehold
Fittings new
Balcony yes
No. of terraces 1
Palcel`s development partially developed
Parcel surface flat
Shape of parcel rectangle
Roof cover plate
Building state to finish
Parcel fencing metal
Built in 2024
Gas no
Water vir_listalng_pompa
Access asphalt
Surrounding built-up land
Heating vir_listalng_pompa_ciepla
Distance to shuttle service [m] 400 m
Distance to shop 400 m
Distance to school 800 m
Distance to kindergarten 80 m
Terraces big terrace
Current in the building
Sewage system City

Rooms

Rooms floors spout
Kitchen type kitchenette connected with the dining room and the living room
Kitchen type kitchen annex - part of living room
Kitchen floor spout
Bathroom type along with the toilet
No. of bathroom 1
Bathroom area 5,35 m2
Bathroom glaze without glaze
Bathroom floor spout
No. of Toilets 1
Toilet area 0,81 m2
Toilet glaze without glaze
Toilet floor spout
No. of anterooms 1
Hall floor spout

Location

Credit calculator

PLN
%
Amount of installment

Cost calculator

PLN
PLN
PLN
PLN
PLN
PLN
%
PLN
Civilian-law commission
Notary commission
Notarial commission VAT
Real-estate register department application
VAT of application for WKW
Real estate agency commission
Real estate agency commission VAT
Extracts of a notarial deed - approx
TOTAL (price+ commissions)

Similar offers

no commission
house for sale - Brzozówka, Lipowa

house for sale

Brzozówka, Lipowa
5 rooms 120,00 m2 6 058,33 zł/m2

Contact us

Please fill in this field
Please fill in this field
Please fill in this field
Please fill in this field
Sending...

We use cookies to improve your experience on our website. By browsing this website, you agree to our use of cookies.

accept